| Vidro temperado | ||
| LVT010 | Vidro temperado | |
|
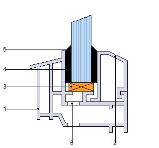
Vidro de silicato sodo cálcico temperado, incolor, de 6 mm de espessura, classificação de prestações 1C2, segundo EN 12600, fixado sobre caixilharia com perfil contínuo de neopreno. | ||
Preço |
|
Exportação |
|

UNIDADE DE OBRA LVT010: VIDRO TEMPERADO.
CARACTERÍSTICAS TÉCNICAS
Vidro de silicato sodo cálcico temperado, incolor, de 6 mm de espessura, classificação de prestações 1C2, segundo EN 12600, fixado sobre caixilharia com perfil contínuo de neopreno.
CRITÉRIO DE MEDIÇÃO DE PROJECTO
Superfície de caixilharia a envidraçar, segundo documentação gráfica de Projecto, incluindo em cada folha com vitral as dimensões do caixilho.
CONDIÇÕES PRÉVIAS QUE DEVEM SER CUMPRIDAS ANTES DA EXECUÇÃO DAS UNIDADES DE OBRA
DO SUPORTE.
Será verificado que a caixilharia está completamente montada e fixada ao elemento suporte. Se verificará a ausência de qualquer tipo de matéria nas ranhuras da caixilharia.
PROCESSO DE EXECUÇÃO
FASES DE EXECUÇÃO.
Colocação do perfil de neopreno no perímetro da folha de vidro. Colocação da folha de vidro no aro. Sinalização das folhas.
CONDIÇÕES DE FINALIZAÇÃO.
O conjunto será monolítico.
CRITÉRIO DE MEDIÇÃO EM OBRA E CONDIÇÕES DE PAGAMENTO
Será medida a superfície realmente executada segundo especificações de Projecto, somando, para cada uma das peças, a superfície resultante de arredondar por excesso cada uma das suas arestas a múltiplos de 30 mm.