Abertura de passagem para ventilação, com arejador linear. Colocação em porta interior
IVA025 Abertura de passagem para ventilação, com arejador linear. Colocação em porta interior
Abertura de passagem para recirculação do ar do interior, dotada de arejador de passagem divisível, telescópico, composto por um elemento central de material fono-absorvente de 60x20 mm de secção e 825 mm de comprimento, com dois perfis superiores telescópicos de PVC, secção 143 cm³, caudal nominal 17,8 l/s e isolamento sonoro de 29 dBA, segundo NP EN ISO 717-1. Colocação por cima da folha da porta, de 725 mm de largura, entre o aro e o pré-aro, em parede divisória desde 60 até 100 mm de espessura.
Preço

43,80€

Ud
Exportação

Arejador
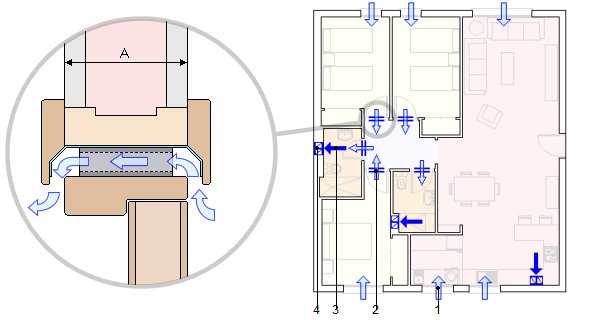
Espessura da parede divisória "A" (mm)
Largura da folha da porta (mm)
1:
Abertura de admissão.
2:
Abertura de passagem.
3:
Abertura de extracção.
4:
Conduta de extracção.

Unitário

Ud

Descrição

Rend.

Preço unitário

Importância

mt42sva245a

Ud

Arejador de passagem divisível, telescópico, composto por um elemento central de material fono-absorvente de 60x20 mm de secção e 825 mm de comprimento, com dois perfis superiores telescópicos de PVC, secção 143 cm³, caudal nominal 17,8 l/s e isolamento sonoro de 29 dBA, segundo NP EN ISO 717-1.

0,900

34,00

30,60

mo011

h

Oficial de 1ª montador.

0,250

25,32

6,33

mo080

h

Ajudante de montador.

0,250

24,04

6,01

 

%

Custos directos complementares

2,000

42,94

0,86

Custo de manutenção decenal: 2,19€ nos primeiros 10 anos.

 

Total:

43,80



UNIDADE DE OBRA IVA025: ABERTURA DE PASSAGEM PARA VENTILAÇÃO, COM AREJADOR LINEAR. COLOCAÇÃO EM PORTA INTERIOR.


CARACTERÍSTICAS TÉCNICAS

Abertura de passagem para recirculação do ar do interior, dotada de arejador de passagem divisível, telescópico, composto por um elemento central de material fono-absorvente de 60x20 mm de secção e 825 mm de comprimento, com dois perfis superiores telescópicos de PVC, secção 143 cm³, caudal nominal 17,8 l/s e isolamento sonoro de 29 dBA, segundo NP EN ISO 717-1. Colocação por cima da folha da porta, de 725 mm de largura, entre o aro e o pré-aro, em parede divisória desde 60 até 100 mm de espessura.



CRITÉRIO DE MEDIÇÃO DE PROJECTO

Número de unidades previstas, segundo documentação gráfica de Projecto.



CONDIÇÕES PRÉVIAS QUE DEVEM SER CUMPRIDAS ANTES DA EXECUÇÃO DAS UNIDADES DE OBRA


DO SUPORTE.

Verificar-se-á que a sua localização corresponde com a de Projecto e que existe espaço suficiente para a sua instalação.



PROCESSO DE EXECUÇÃO


FASES DE EXECUÇÃO.

Marcação. Colocação e fixação do arejador.


CONDIÇÕES DE FINALIZAÇÃO.

A ventilação será adequada.



CRITÉRIO DE MEDIÇÃO EM OBRA E CONDIÇÕES DE PAGAMENTO

Medir-se-á o número de unidades realmente executadas segundo especificações de Projecto.



Código LER

Tipo

Peso (kg)

Volume (l)

15 01 01

Embalagens de papel e cartão.

0,082

0,109

17 02 03

Plástico.

0,041

0,068

 

Embalagens:

0,123

0,178